Проект реставрации усадьбы в Рождествено скорректируют из‑за найденного фундамента XVIII века
В Ленинградской области продолжается проектирование реставрационных работ в усадьбе Рукавишниковых в Рождествено. Корректировка документации завершится до конца 2026 года, а в начале 2027 года планируется получить положительное заключение экспертизы.
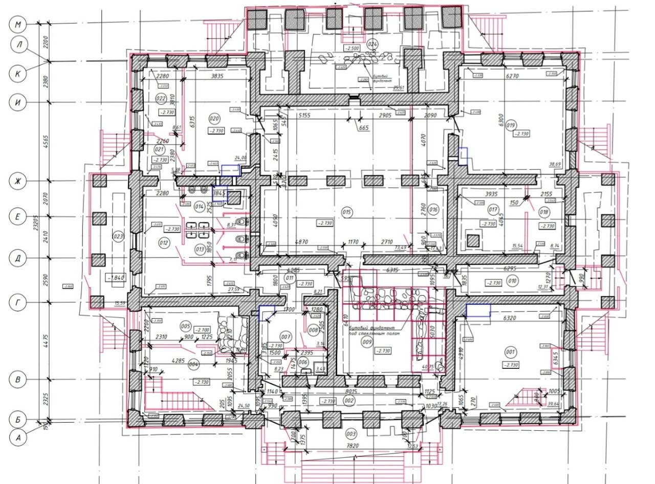
Как сообщил в среду, 15 апреля, вице-губернатор Ленобласти Владимир Цой, необходимость в существенной корректировке проекта возникла после того, как в цокольном этаже усадьбы был найден фундамент более ранней постройки. Возможно, археологи обнаружили фрагменты дворца царевича Алексея Петровича, сына Петра I.
Власти приняли решение о музеефикации и экспонировании найденных каменных фундаментов в цоколе усадьбы. Хозяйственные и санитарные помещения, необходимые музею, будут вынесены и расположены вне здания. При этом облик усадебного дома при этом не претерпит изменений.
Отметим, последним владельцем усадьбы Рукавишниковых в Рождествено был Владимир Владимирович Набоков.

Владимир Цой



Фото: Комитет по сохранению культурного наследия Ленинградской области, архив
